El Barrio Flotante de las Balsas / Natura Futura

El Barrio Flotante de las Balsas / Natura Futura - Imagen 15 de 44El Barrio Flotante de las Balsas / Natura Futura - Imagen 3 de 44El Barrio Flotante de las Balsas / Natura Futura - Fotografía exterior, Madera, Borde costeroEl Barrio Flotante de las Balsas / Natura Futura - Imagen 12 de 44El Barrio Flotante de las Balsas / Natura Futura - Más Imágenes+ 39

Babahoyo, Ecuador
  • Categoria: Casas
  • Colaboradores: Kevin Araujo, Bamba Studio, Jhonatan Andrade, Edison Noboa, Roswell Suárez
  • Habitantes De Las Balsas: Wilmer Eleno, Victor Amaiquema, Teresa Mariscal, Grecia Vera, Pablo Carbo, Miller Vargas
  • Soporte: REARC Institute Practice Lab
  • Ilustraciones: Momento Movimiento
  • Ciudad: Babahoyo
  • Pais: Ecuador
Más informaciónMenos información
El Barrio Flotante de las Balsas / Natura Futura - Fotografía exterior, Madera, Borde costero
© JAG Studio

Descripción enviada por el equipo del proyecto. Desarrollada en las riberas del río Babahoyo, Ecuador. Hace 200 años, el río estuvo habitado por más de 250 casas flotantes; en el año 2010, más de 80 familias fueron desplazadas a desarrollos inmobiliarios municipales a 6 kilómetros del río, desconectandose de sus vínculos comerciales, sociales, tradiciones y formas de vida.

El Barrio Flotante de las Balsas / Natura Futura - Fotografía exterior, Borde costero
© JAG Studio
El Barrio Flotante de las Balsas / Natura Futura - Fotografía exterior, Madera, Borde costero
© JAG Studio
El Barrio Flotante de las Balsas / Natura Futura - Imagen 3 de 44
© JAG Studio

Actualmente, apenas veinticinco viviendas sobreviven sobre el río, en condiciones inadecuadas para el desarrollo de la comunidad. Dada esta situación el proyecto propone ser un espacio público y privado (habitantes locales) que revalorice el hábitat flotante, recuperando las técnicas tradicionales para la preservación del ecosistema social y natural del río.

El Barrio Flotante de las Balsas / Natura Futura - Imagen 28 de 44
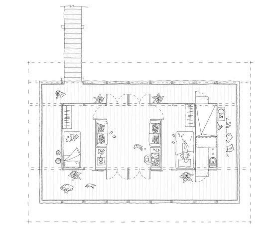
Planta
El Barrio Flotante de las Balsas / Natura Futura - Imagen 35 de 44
Diagrama
El Barrio Flotante de las Balsas / Natura Futura - Imagen 30 de 44
Planta
El Barrio Flotante de las Balsas / Natura Futura - Imagen 40 de 44
Diagrama

En cooperación con  REARC Practice Lab y la comunidad, se establecieron estrategias para la rehabilitación de 7 viviendas existentes de variadas dimensiones, restauración de la ladera del río con vegetación endémica  y la creación de espacios públicos inundables, capaces de adaptarse a los cambios del río.

El Barrio Flotante de las Balsas / Natura Futura - Fotografía interior, Madera, Terraza
© JAG Studio
El Barrio Flotante de las Balsas / Natura Futura - Fotografía interior, Madera, Terraza
© JAG Studio
El Barrio Flotante de las Balsas / Natura Futura - Fotografía interior, Madera, Terraza, Fijación Vigas
© JAG Studio

El sistema se compone de plataformas flotantes, módulos replicables de cerchas de madera que aumentan o reducen su número acorde a las necesidades específicas de cada habitante,  pasarelas inundables, baños secos y sistemas de filtración que garantizan el acceso permanente a agua limpia. Las plataformas fueron construidas con madera local, estructuras metálicas ligeras y tanques reciclados de flotación, priorizando su resistencia ante los fuertes inviernos.

Durante los procesos participativos, se trabajó en la definición de materiales, espacios necesarios  y técnicas a usar;  aportando su conocimiento empírico sobre las dinámicas del río, y las necesidades clave del hábitat flotante. Este proceso permitió que la propuesta final mantenga coherencia con la identidad cultural del lugar y responda a necesidades particulares como la pesca, el reciclaje y la accesibilidad universal para un hombre discapacitado.

El Barrio Flotante de las Balsas / Natura Futura - Imagen 41 de 44
Diagrama
El Barrio Flotante de las Balsas / Natura Futura - Imagen 36 de 44
Diagrama

La infraestructura comprende  7 accesos móviles, ciento cincuenta metros de senderos inundables y una plataforma pública que articula el hábitat, el comercio y el encuentro comunitario. Además, los siete sistemas de baños seco y filtración doméstica evitan anualmente el vertido de aproximadamente 350 m³ de aguas residuales al río, reduciendo la carga contaminante y mejorando la salud ambiental del entorno.

El Barrio Flotante de las Balsas / Natura Futura - Imagen 14 de 44
© JAG Studio

Las estrategias urbanas abarcan la restauración de 750 m² de ribera, reforestados con especies nativas como Pechiche y Matapalo, capaces de resistir tres meses de inundación y controlar la erosión del terreno. Estas acciones estimulan la restauración de especies vegetales nativas, control de la erosión de taludes y por ende, la regeneración del ecosistema ribereño. En paralelo, el modelo de gestión garantiza que la propiedad y el uso de los espacios permanezcan en manos de las familias, mientras el municipio brinda apoyo técnico para el mantenimiento de las infraestructuras comunes.

El Barrio Flotante de las Balsas / Natura Futura - Fotografía exterior, Madera
© JAG Studio
El Barrio Flotante de las Balsas / Natura Futura - Imagen 12 de 44
© JAG Studio

El barrio flotante de las balsas explora posibles soluciones para la recuperación sostenible de comunidades flotantes, valorizando las técnicas tradicionales, la mano de obra local, el trabajo cooperativo entre entidades internacionales y el consenso colectivo de toma de decisiones. Facilitando el camino para la generación de políticas públicas que valoricen el hábitat colectivo del río como una extensión del espacio público y de la memoria histórica de una ciudad.

El Barrio Flotante de las Balsas / Natura Futura - Imagen 6 de 44
© JAG Studio

Galería del Proyecto

Ver todoMostrar menos
Sobre esta oficina
Cita: "El Barrio Flotante de las Balsas / Natura Futura" 14 nov 2025. ArchDaily México. Accedido el . <https://www.archdaily.mx/mx/1035951/el-barrio-flotante-de-las-balsas-natura-futura> ISSN 0719-8914

Has seguido tu primera cuenta!

¿Sabías?

¡Ahora recibirás actualizaciones de las cuentas a las que sigas! Sigue a tus autores, oficinas, usuarios favoritos y personaliza tu stream.